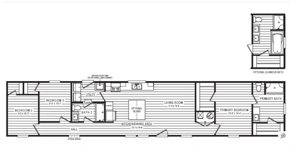
We are pleased to present the Clayton Pinehaven 2025 offers modern style, open‑concept living, and energy‑efficient construction designed for today’s lifestyle. Its spacious layout features a bright living area, a well‑appointed kitchen, and comfortable bedrooms that make the home feel both inviting and functional. Quality finishes and thoughtful design details give this home exceptional value and long‑lasting appeal. Located in the friendly Augusta Woods community, residents enjoy a peaceful neighborhood setting surrounded by the natural beauty of the Shenandoah Valley. With Staunton’s vibrant downtown, historic charm, and convenient amenities just minutes away, this home provides the perfect blend of comfort and location. Call to schedule your tour TODAY!!!
Clayton Pinehaven 2025
3 Bedroom || 2 Bathroom
16′ x 76′ || 1,216′ SqFt
