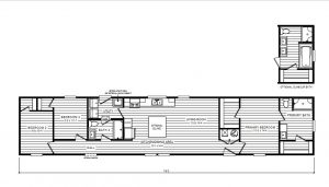
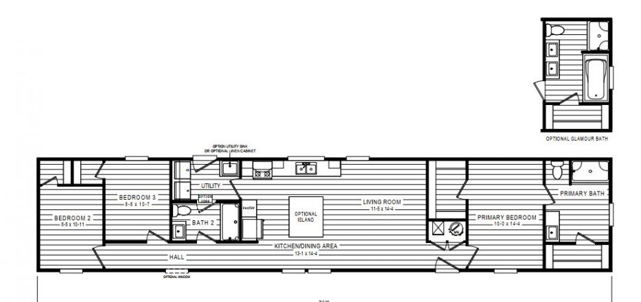
We are pleased to present the Clayton Crepe Myrtle 2025! Combines modern design with comfortable, practical living spaces perfect for a variety of lifestyles. Its open‑concept layout features a bright living area, a stylish kitchen, and thoughtfully arranged bedrooms that maximize both privacy and functionality. High‑quality construction and energy‑efficient features ensure long‑term value and low maintenance. Nestled within the welcoming Augusta Woods community, residents enjoy a peaceful neighborhood surrounded by the scenic beauty of the Shenandoah Valley. With Staunton’s vibrant downtown, historic charm, and everyday conveniences just minutes away, this home offers the ideal blend of comfort, quality, and location. Call to schedule your tour TODAY!!!
Clayton The Crepe Myrtle 2025
4 Bedroom || 2 Bathroom
16′ x 76′ || 1,216′ SqFt
